Materiały Ogniotrwałe   >   Produkty   >   Ceramika z SiC na wiązaniu azotkowym

Ceramika z SiC na wiązaniu azotkowym

Wyroby z SiC na wiązaniu azotkowym są stosowane w przemyśle metali nieżelaznych do topienia m.in. miedzi, aluminium, cynku i ołowiu. 

Nasze wyroby znajdują także zastosowanie w różnych urządzeniach grzewczych jako m.in:

-  osłony do termopar chroniące przed działaniem płynnych metali, 

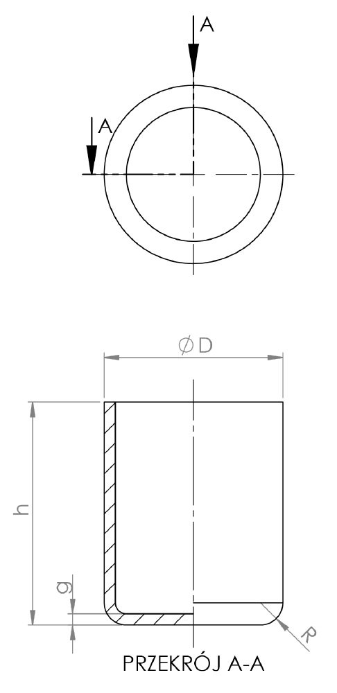
-  tygle cylindryczne, stożkowe, baryłkowe,

-  płyty, rynny w piecach do wypału ceramiki,

- elementy odporne na ścieranie - ślizgi, prowadnice, wyłożenia trzonów.

Kształtki wykonywane są zarówno jako wyroby standardowe (osłony, tygle, płyty) jak i jako wykonania indywidualne wg projektu klienta także z wykonaniem niezbędnego oprzyrządowania. Produkujemy zarówno długie serie, jak i pojedyncze egzemplarze.

Własności* Wielkość
Zawartość SiC [%] 80
Temperatura stosowania, max. [0C] 1600
Gęstość pozorna [g/cm3] 2,3
Porowatosć otwarta [%] 18-26
Odpornośc na wstrząsy cieplne [n/H2O] >40
Wytrzymałość na ściskanie [MPa] 100
Przewodność cieplna w temperaturze [W/mK]:  
4000C 5,75
6000C 5,80
8000C 6,15
Odporność na ścieranie [cm3] 5,5

* Typowe, średnie własności, nie stanowią warunków odbioru